Marche
Categorie
Scegli solo i prodotti...
Tutti i Costi Finanziari sono esposti trasparentemente.
Tutti i prezzi sono comprensivi di IVA.
|
 SCHEDA PRODOTTO
| . |
|
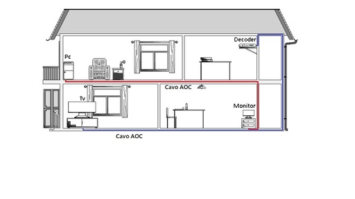
Cavo fibra ottica AOC (Active Optical Cable) per collegare tra loro due dispositivi HDMI« trasmettendo audio e video con la qualitÓ fino a 8K60Hz a lunga distanza. Per esempio si possono collegare un PC, notebook, decoder, lettore Blu ray ecc. a un video o HDTV. Nello specifico questo cavo supporta 3D, audio HD, 8K, HDCP, EDID, Plug and Play e Hot Swap. Il segnale HDMI« sul cavo classico di rame comincia a deteriorarsi dopo pochi metri. Mantenere ottime risoluzioni a grandi distanze Ž costoso e complicato, si possono usare cavi amplificati, che solitamente non oltrepassano i 50 metri e necessitano di regolazioni, oppure si possono usare estensori tramite cavo di rete, che necessitano di alimentazione e cavi di rete su misura. LĘalternativa ora sono questi cavi AOC (Active Optical Cable), coi quali si possono raggiungere grandi distanze mantenendo altissime risoluzioni e con nessuna alimentazione o regolazione da effettuare. E' sufficiente collegare i due connettori alla HDTV e al dispositivo sorgente ed il collegamento Ž pronto. Rappresenta quindi unĘottima soluzione per collegamenti home video, videogame, scuole, dimostrazioni, fiere. CARATTERISTICHE E VANTAGGI Non cĘŽ perdita di segnale e lĘimmagine viene trasmessa con grande chiarezza senza ritardi. I cavi AOC usano fibra ottica come conduttori, che sono piØ leggeri e sottili dei cavi di rame facilitando cosż la posa e la gestione del cavo. Inoltre, i cavi AOC non risentono di interferenze elettromagnetiche. La guaina conferisce comunque robustezza al cavo che pu= essere curvato e arrotolato. Questo cavo supporta 8K a 60 Hz o 4K 120Hz. LĘampiezza della banda Ž necessaria per giochi HD e 3D, dove la fluiditÓ Ž indispensabile. - Bassi consumi di energia. - E' semplice da installare come un cavo, non necessita di impostazioni, alimentazione o regolazioni. Si pu= posizionare quindi lontano da prese di alimentazione. - Compatibile con lo standard HDMI 2.1 - Supporta HDCP - Funzione auto rilevamento informazioni EDID. - Plug and Play
 |
Confezione: |
|
| |
Peso Lordo: 1,96 Kg
Dimensioni Lorde: 100x100x100 mm |
|
| |
|
|
 |
LINK - Sito web:http:// |
|
| |
|
|
| |
|
|
|
|
| |
|
Tutti i prezzi sono comprensivi di IVA.
Il Listino è in EURO, salvo se diversamente indicato. Marchi e i nomi di prodotti sono registrati dai rispettivi titolari. Dati a cura del Fornitore. Non possiamo essere ritenuti responsabili per eventuali errori o refusi presenti. Prodotti, versioni, prezzi, termini e garanzie sono soggetti a cambiamenti senza preavviso. In ogni rapporto di fornitura valgono le Condizioni Generali di Vendita. Prezzi aggiornati in tempo reale. |
|
|
| Perchè Comprare qui? |
 |
Prodotti di qualitą dei maggiori Marchi |
 |
Informazione sulla disponibilitą dei prodotti |
 |
Aiuto all'acquisto |
 |
Sicurezza nell'acquisto |
 |
Scelta della forma di pagamento |
 |
Pagamenti sicuri con transazioni riservate |
 |
Rispetto della Privacy |
 |
Supporto nella soluzione di problemi |
 |
Professionalitą e competenza del nostro Staff |
 |
Ricerca su richiesta di prodotti non a Listino |
|